Tél : 09 83 82 54 65
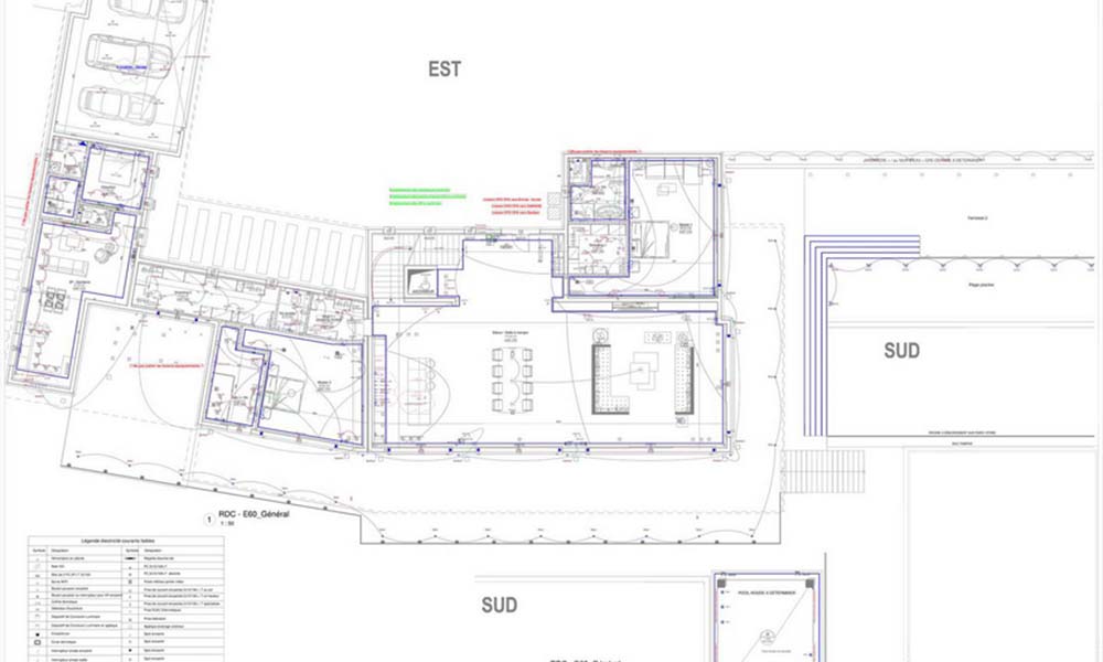
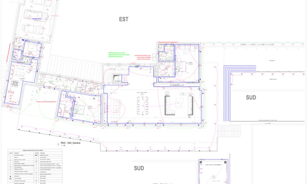
Villa Super CANNES
Installation complète d’une villa d’une surface de 320m2
Envoyer nous un message et notre équipe vous contactera dans les meilleurs délais.